

博物館南側視角
西藏非物質文化遺產博物館是由深圳市政府與萬科集團出資,并由萬科代建的深圳支援西藏自治區的重點項目。

西南側視角
項目基地位于新開發的慈覺林文創園區,地處由拉薩河谷向南延伸形成的平緩地帶,向北與拉薩老城隔河谷相望,而東西南三面,則被山體環抱。

項目區位

整體鳥瞰

遠眺拉薩河谷

博物館、拉薩河谷與布達拉宮
我們希望這座博物館能成為西藏新的文化地標,同時能以友善的姿態融于現有的自然環境和城市肌理之中;另一方面也能與布達拉宮、大昭寺等西藏重要的歷史建筑產生文脈上的共生關系,從而形成一種跨越時空的對話。

晨光中的博物館

遠眺布達拉宮

眺望布達拉宮

跨越時空的的對話
在拉薩這座極其特殊的城市中,自然與人文、歷史與當下的種種要素相互交匯疊加,形成了我們設計的特定條件和思考原點。

雪中的博物館

博物館與山脈遙相呼應

建筑與遠山

局部特寫
西藏是人們心中接近天空的圣地,布達拉宮和大昭寺更是朝圣的目的地。我們以“天路”作為項目的基本設計概念,暗合了藏地的最獨特的自然和文化基因。

概念草圖——“天路”
在設計之中,“天路”概念體現為三個層面:首先是物理層面的行走路徑,它提取自布達拉宮之字形步道的原型,經過抽象的演繹,構成了從場地入口迂回上升進入建筑,以及在博物館內部螺旋攀升的基本空間動線。

場地入口視角

內院及坡道




不同視角中的建筑
其次是空間疊加帶來的特殊體驗的路徑:博物館建筑原型從大昭寺主殿演化形成,當這種內向而穩定的空間結構和由天路概念形成的參觀路徑相疊加后,則在人與物理空間之間形成了非常多樣化的關系,或高狹,或開闊,或幽暗,或明朗,仿佛在經歷一段特殊的生命旅程。

墻身節點
而這種特殊的空間經驗自然而然地引發了人們心理和情感層面的微妙變化,就成為“天路”的第三重意義——心路。

空間體驗

大堂及展廳
參觀者經過艱苦的攀爬,一路領略了藏地豐富的非物質文化遺產,最終達成和布達拉宮的跨越時空的對望。這是一種對話,更是一種致敬,是向西藏偉大的自然地理和歷史文化致敬,也是向每個人心中的那片圣地致敬。

“致敬”
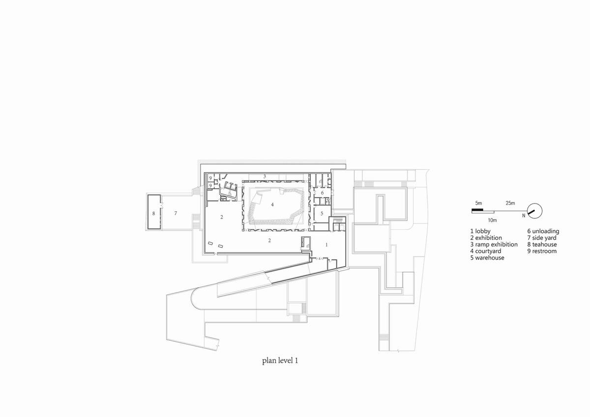
設計圖紙:

項目總圖



此圖文內容轉載自景觀中國,只供鑒賞。


