
COMPANY NEWS 公司新聞
三溪?鼎源春天設計感悟
2018-07-03
項目解讀:
項目位于遵義市習水縣新城區,地處華潤希望大道南側、長江中路東側,周圍交通十分便捷。但基地內部高差較大,最大處達三十多米,為設計帶來巨大的挑戰。

夜景鳥瞰圖
規劃設計:
設計采用中心圍合式的布局模式,所有住宅產品共享中央核心庭院的景觀資源。沿華潤大道方向設置吊層商業,結合地下車庫解決場地的高差問題,將場地的開挖量降到最小。
:
總平面圖

場地剖面示意圖
建筑風格:
項目采用artdeco風格,色彩穩重、大方,重視比例與韻律,住宅屋頂造型著力細節刻畫。沿街商業采用米黃色干掛石材,配以深色裝飾主義金屬型材,簡約大氣,并利用artdeco風格的經典柱式母題,營造出韻律感極強的商業氛圍。

沿街夜景透視圖一

沿街夜景透視圖二
戶型設計:
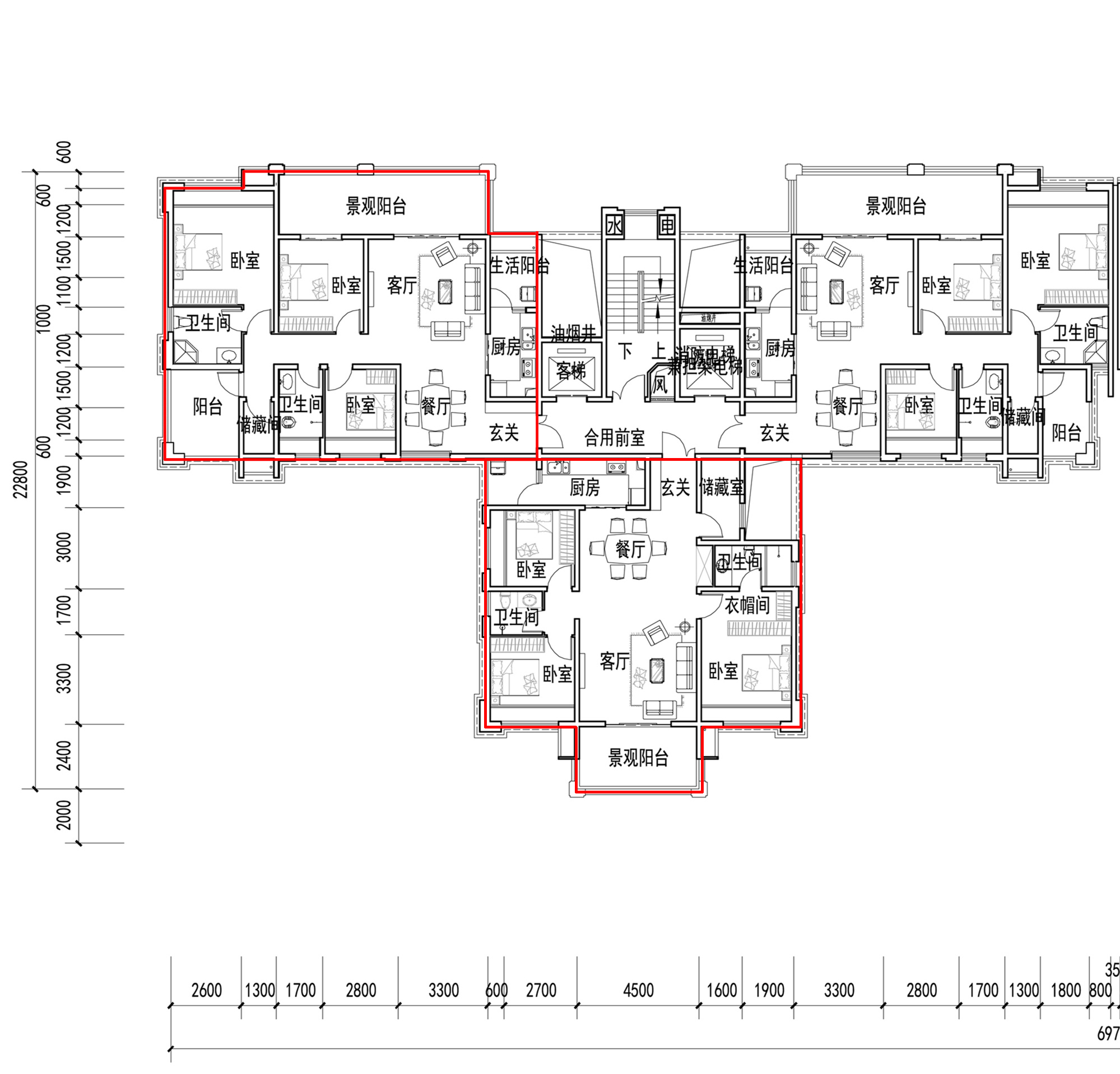
產品定位于中高端家庭,追求大尺度、高舒適度、多功能性。項目共包含四種主力戶型,分別是135㎡舒適型3+1房、122㎡改善型3+1房、114㎡剛需3房、84㎡剛需2房。
135戶型及122戶型更注重產品使用的舒適度:
-
兩種戶型均設有雙陽臺,135戶型更有面寬7.8米的豪華景觀陽臺;
-
均開拓出了相對獨立的入戶玄關空間;
-
利用儲藏室與陽臺的結合,打造出多功能性空間;

135㎡及122㎡戶型
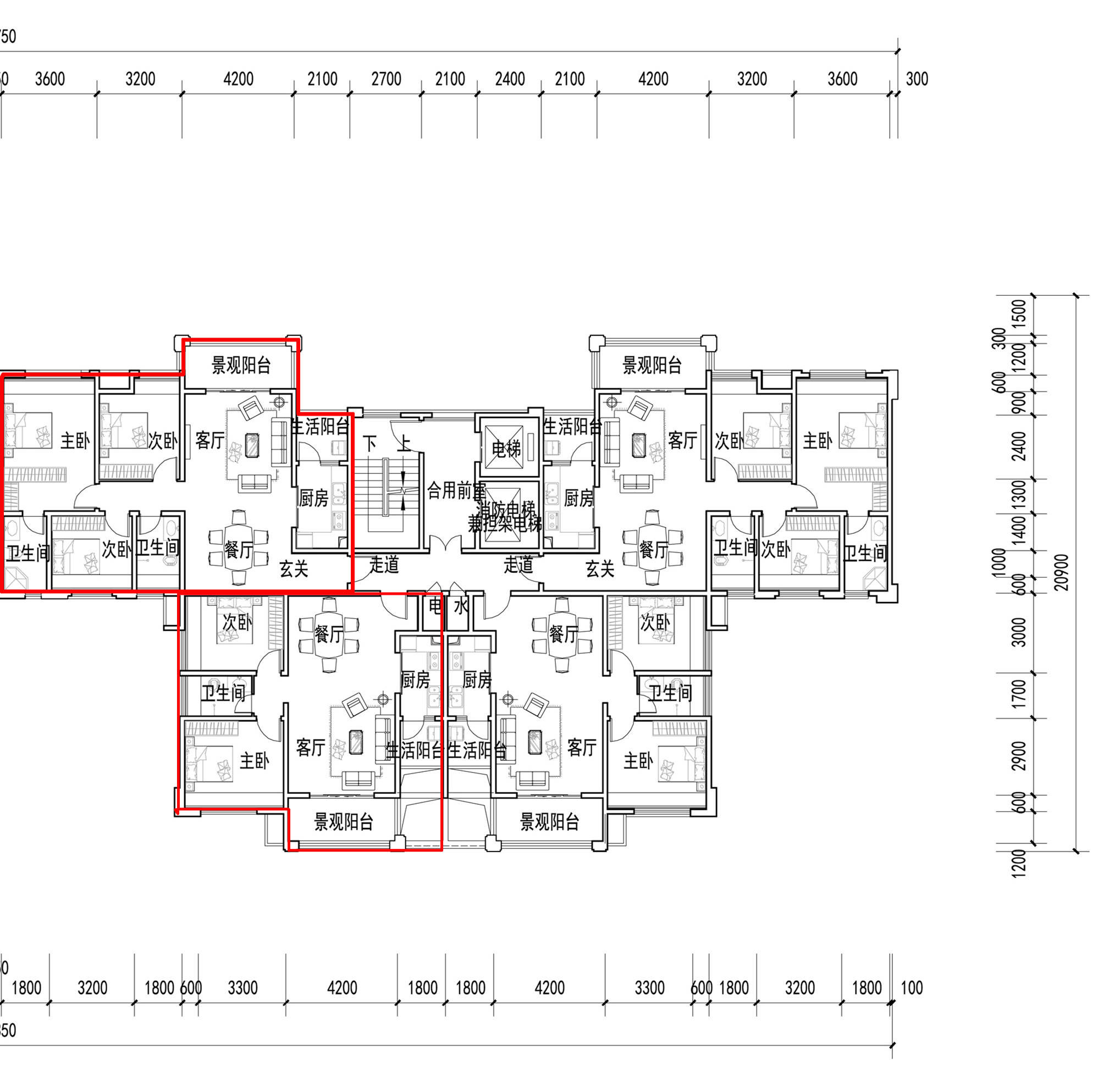
114戶型及84戶型更注重產品的經濟性與使用的合理性:
- 飄窗最大化,增加贈送空間;
-
設有生活陽臺與景觀陽臺,兼顧觀景與家政的雙重需求;
-
結構方正整齊、提供產品的使用效率

114㎡及84㎡戶型
結語
項目從規劃、造型、戶型三個主要方面對如何實現高端居住進行了闡釋與設計回應。通過對建筑及空間環境的精雕細琢,不僅讓居所奢闊華美,也讓居者盡享高端品質的生活體驗。
BEIJING CCI ARCHITECTURAL DESIGN CO.LTD.CHONGQING BANCH
北京中外建建筑設計有限公司重慶分公司
Copyright ? 2015 BEIJING CCI ARCHITECTURAL DESIGN CO.,LTD.All rights reserved. 渝ICP備15000460號-1 Support:redsung


